| 【四日市】 | Tel.0120-541-008 |
|---|---|
| 【桑名】 | Tel.0120-932-144 |
| 【鈴鹿】 | Tel.0120-002-047 |
| 【津】 | Tel.0120-080-311 |
| 【一宮】 | Tel.0120-597-011 |
| 【尾張旭】 | Tel.0120-02-8670 |
| 【春日井】 | Tel.0120-96-9466 |
| 【岐阜】 | Tel.0120-920-769 |
営業時間 10:00〜18:00 定休日 火曜日
春日井店・尾張旭店・一宮店・鈴鹿店・桑名店・岐阜店は火水定休となります。
施工事例

光と緑が包む中庭の平屋

◾️基本情報
本体価格: 2214万円(70.0万円/坪)
※オプション込み・付帯工事別(表示価格は施工当時の価格)
家族構成:夫婦+子ども1人
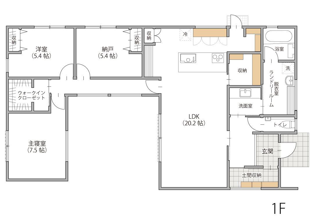
間取り :2LDK+納戸
敷地面積:322.20㎡(97.46坪)
延床面積:104.52㎡(31.61坪)
管理番号:4049565
◾️建築情報
竣工年月:2024年10月
駐車場 :3台



シックなブラックのガルバリウム外壁に、木目のアクセントが優しく調和するファサード。季節ごとに彩りを添えるシンボルツリーが、家族の時間にやさしいリズムを刻みます。

建物をコの字型に配置することで生まれたプライベートな中庭。外からの視線を遮りながら、空へと開く設計が心地よさを生み出します。大判タイルの床が上質さを演出し、植栽の緑が暮らしに潤いを添え、光と風を感じながら過ごすひとときが、毎日の特別に。

玄関に入るとまず目を引くのは、ご主人が撮影された夕焼けの美しい一枚。木目天井と白壁にアートが映え、まるでギャラリーのような空間です。

木目調の勾配天井が印象的なLDK。天井の高さが変化することで、空間に奥行きと落ち着きを生み出します。無垢のフローリングやナチュラルな家具が、柔らかな陽光と心地よく調和。中庭に面した掃き出し窓からは、季節の光と風がやさしく届きます。

グレーの面材と白い天板が美しい、フラットなアイランドキッチン。木目天井と呼応するように、空間全体が温かみのあるトーンで統一されています。手元を明るく照らす照明には旦那様お手製のドライフラワーが揺れ、毎日の家事が少し特別に。

キッチン奥に設けられたパントリーは、動線がスムーズで使い勝手も抜群。棚のサイズや収納ケースの配置が計算され、食品や日用品をすっきりと管理できます。


キッチン横に設けられたスタディーカウンターは、家事の合間のひと息やリモートワークにも便利なスペース。ネイビーのアクセントクロスが空間を引き締め、落ち着いた雰囲気を演出します。

廊下に面した大開口の窓からは、中庭の景色とやさしい陽光がたっぷりと注ぎ、まるで屋外と屋内がゆるやかにつながるような感覚に。木目の天井と床が自然の光をやさしく反射し、通るたびにほっと心がほどけるような、贅沢な通路空間です。


モルタル調の造作カウンターが目を引く洗面台は、ホテルライクな洗練さと温もりを両立。白いサブウェイタイルが清潔感を演出し、木製の可動棚にはラタン調のバスケット収納をセット。天井の木目ともリンクし、朝の支度時間が少し楽しくなるような空間に仕上がっています。

ご主人が手がけたお庭は、石や多肉植物を組み合わせたセンスあふれるドライガーデン。ナチュラルなフェンスと植栽が心地よく調和し、外壁のブラックとも好相性です。休日には草木の手入れをしたり、季節の変化を眺めたり。自分たちでつくり上げる庭時間が、暮らしに彩りを添えてくれます。



